Продается дом, 90 кв.м., 1/1 эт
| Стоимость | 12 800 000 |
|---|---|
| Комнат в доме | 3 |
| Категория земли | Садоводство |
| Тип комнат | раздельные |
| Ремонт | Дизайнерский |
| Этаж | 1 |
| Категория земли Avito | Дачное некоммерческое партнёрство (ДНП) |
| Способ связи avito | По телефону |
| Материал стен (Авито дома) | Кирпич |
| Тип отопления cian | Электрическое |
| Тип дома cian | Кирпичный |
| Водоснабжение (cian) | Скважина |
| Водопровод | Есть |
| Водоснабжение avito | Скважина |
| Канализация avito | Септик |
| Газ avito | Нет |
| Тип строения | Дом |
| Площадь, кв.м. | 90 |
| Площадь участка, сот | 6 |
| Этажность | 1 |
| Материал стен | кирпич |
| Населенный пункт | Ядромино Деревня |
|---|
ПРОДАЖА ДОМА В КП "ИСТРИНСКИЕ САДЫ", Д. ЯДРОМИНО, ИСТРА НОВЫЙ ДОМ 2025 ГОДА.
СЕМЕЙНАЯ ИПОТЕКА 6%
Предлагаем современный одноэтажный дом для комфортной семейной жизни в экологически чистом районе Подмосковья.
ХАРАКТЕРИСТИКИ ДОМА:
- Площадь: 90 кв.м.
- Год постройки: 2025
- Материал: газосиликатный блок, облицовка кирпичом
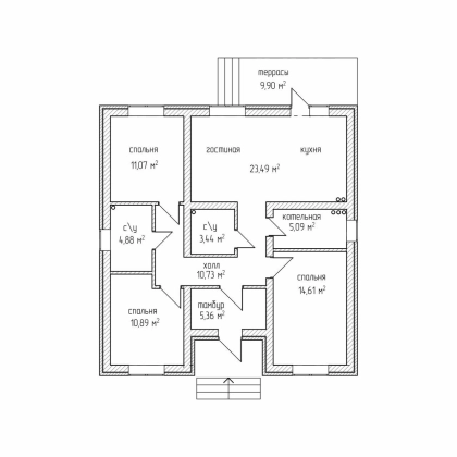
- Планировка: 3 спальни, просторная кухня-гостиная,
- 2 санузла,
- терраса
- Фундамент: свайно-ростверковый
- Крыша: металлочерепица
- Отделка: предчистовая (стены оштукатурены, стяжка пола выполнена)
КОММУНИКАЦИИ:
- Электричество: 15 кВт, договор с Россети
- Отопление: электрокотел установлен и работает, теплый пол по всему дому, дополнительные радиаторы в каждой комнате
- Водоснабжение: скважина 52 метра
- Канализация: септик
- Электрика: разведена по дому, готова к подключению
- Сантехника: выводы под мокрые точки выполнены
ПЛАНИРОВКА:
- Просторная кухня-гостиная — сердце дома с большими окнами и естественным освещением. Идеальное пространство для семейных ужинов и встреч с друзьями.
- Три спальни — достаточно места для всей семьи. Каждая комната продумана для комфорта и приватности.
- Два санузла — дополнительное удобство, никаких очередей по утрам.
- Терраса — прекрасное место для отдыха на свежем воздухе, утреннего кофе или вечерних посиделок.
УЧАСТОК: 6 соток
ПРЕИМУЩЕСТВА ДОМА:
- Надежный застройщик — работает на рынке более 15 лет
- Строительный контроль – на каждом этапе принимается "Строй Надзор"
- Отличная тепло- и звукоизоляция благодаря газосиликатным блокам
- Экономичное отопление — теплый пол + радиаторы
- Эстетичный внешний вид — облицовка кирпичом
- Новый дом — в котором сможите сделать отделочные работы на свой вкус.
- Подходит под семейную ипотеку
РАСПОЛОЖЕНИЕ И ИНФРАСТРУКТУРА:
- Адрес: Московская область, Истра, д. Ядромино, КП "Истринские сады"
- До МКАД: 60 км по трассе Удобный выезд на Волоколамское и Новорижское шоссе
- В ПЕШЕЙ ДОСТУПНОСТИ:
- ЖД станция — 15 минут пешком
- Школа — 10-15 минут пешком
- Продуктовые магазины
- Автобусная остановка
ПОЧЕМУ ЭТОТ ДОМ?
Проверенный застройщик — более 15 лет на рынке строительства
Контроль качества — каждый этап принимается "Строй Надзор"
Новый дом 2025 года постройки — без скрытых дефектов
Готов к заселению — предчистовая отделка позволяет быстро завершить ремонт по своему вкусу
Идеален для семьи с детьми — школа рядом, безопасный район, чистый воздух
Экономичное содержание — продуманная система отопления
Развитая инфраструктура — все необходимое в шаговой доступности
Удобная транспортная доступность — электричка и автобусы
Семейная ипотека под 6%
ДЛЯ КОГО ЭТОТ ДОМ? Для семей с детьми, которые ищут современное жилье в экологически чистом районе с развитой инфраструктурой и удобной транспортной доступностью.
Звоните! С удовольствием организую показ и отвечу на все вопросы.
(ИСХ 1945)















































