Продается дом, 113 кв.м., /1 эт
| Стоимость | 10 500 000 |
|---|---|
| Комнат в доме | 3 |
| Категория земли | Садоводство |
| Тип комнат | раздельные |
| Ремонт | Дизайнерский |
| Тип парковки | На улице |
| Категория земли Avito | Садовое некоммерческое товарищество (СНТ) |
| Способ связи avito | По телефону |
| Материал стен (Авито дома) | Пеноблоки |
| Тип отопления cian | Электрическое |
| Тип дома cian | Газобетонный блок |
| Водоснабжение (cian) | Скважина |
| Водопровод | Есть |
| Тип строения | Дом |
| Площадь, кв.м. | 113 |
| Площадь участка, сот | 6.3 |
| Этажность | 1 |
| Материал стен | Кирпич |
| Населенный пункт | Подпорино Деревня |
|---|
Продается новый современный дом c отделкой под ключ в посёлке Подпоринские Просторы (г.о. Истра, деревня Подпорино), 38 км до МКАД!
ДОМ
Фундамент: сваи 34 шт + ростверк, монолитная плита.
Наружные стены: газоблок Д500, утеплитель, силикатный кирпич.
Внутренние стены и перегородки: газоблок 200 мм/100 мм.
Бетонный армопояс.
Кровля: металлочерепица.
Окна: теплый профиль 70 мм.
Собственная скважина.
Отопление: теплый водяной пол + радиаторы отопления
Электричество 15 кВт - договор Россети.
Канализация: септик Евролос.
Сделано заземление дома.
УЧАСТОК
Правильной формы 6,3 сотки. Ровный, сухой.
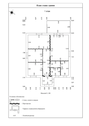
ПЛАНИРОВКА
Кухня-гостиная с выходом на веренду, два санузла, три спальни, просторный коридор, котельная. Дом сдается полностью с отделкой.
Дом для постоянного проживания, прописка.
ИНФРАСТРУКТУРА
До жд ст. 159 км (кольцевая) 10-15 минут пешком, до автобусной остановки 800 м., автобус ходит до города Истра. Удобный выезд на ЦКАД в любую сторону. Транспортную доступность обеспечивают Новорижское, Волоколамское, Пятницкое и Ленинградское шоссе. Коттеджный поселок "Подпоринские Дачи" располагается рядом с лесом, где можно собирать грибы. В 2-к километрах расположена церковь Вознесенская.
Продажа от ЗАСТРОЙЩИКА! Возможна ЛЬГОТНАЯ ИПОТЕКА! Ипотека, материнский капитал, Херсонский сертификат!
Исх 1890





































